中古一戸建て岡山市北区一宮
岡山市北区一宮 閑静な住宅地 売一戸建中古住宅!
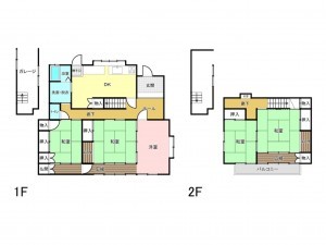
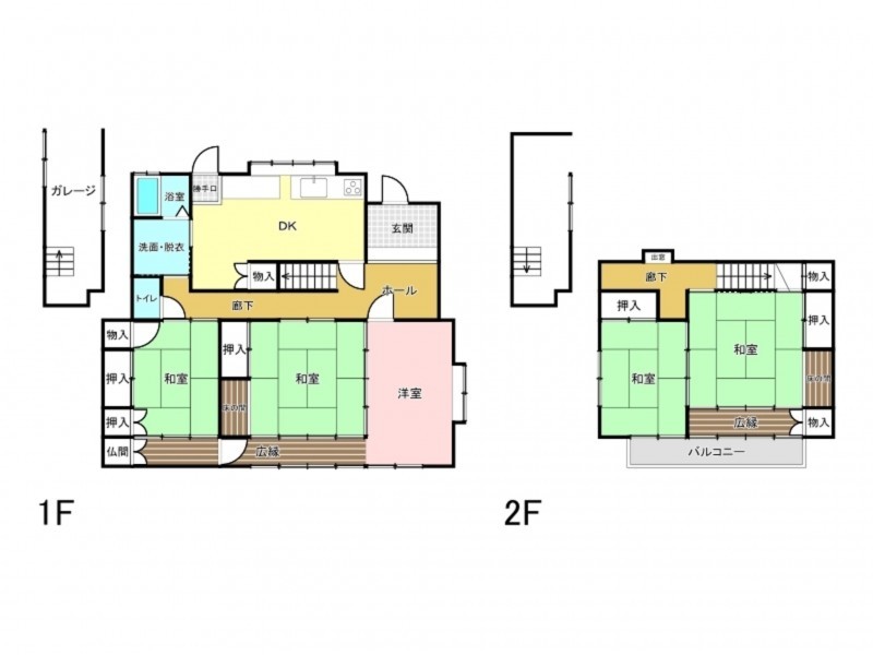
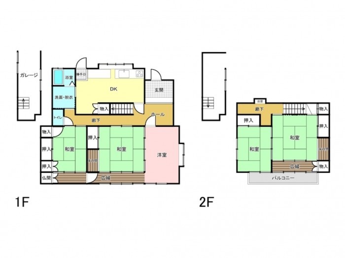
物件概要
- 所在地
- 岡山市北区一宮
- 価格
- 1,680 万円
- 交通
-
JR吉備線 備前一宮駅 まで 徒歩12分
- 土地面積
- 217.36㎡ (65.75坪)
- 建物面積
- 130.81㎡ (39.57坪)
- 間取り
- 5DK
- 築年数
-
1988年
(昭和63)
5月
築37年 - 接道状況
- 北西側 公道4m 間口約15.2m 舗装有
- 建ぺい率
- 50%
- 容積率
- 100%
- 土地権利
- 所有権
- 構造および階数
- 木造 地上2階建
- 小学校区
- 中山 (1200m)
- 中学校区
- 中山 (600m)
- 私道負担
- 地目
- 宅地
- 現況
- 空
- 引渡時期
- 相談
- 駐車場
- 有 1台
- 上水道
- 公共
- 下水道
- 公共
- ガス
- 都市ガス
- 都市計画
- 市街化区域
- 用途地域
- 1種低層
- 設備・条件
- トイレ2箇所、給湯、温水洗浄便座、ガスコンロ可、フローリング、照明器具、庭、物置、II字型キッチン、勝手口、階段下収納、全室照明付、エアコン2台以上、縁側
- 備考
-
・現況有姿の売買となります。
・給排水・電気設備は現状渡しとなりますので、点検費用・修繕費用は買主の負担となります。(10年位使用していません)
・脱衣場天井部分がはがれていますが、ご希望であれば売主が修繕してお渡しいたします。
・残置物は、撤去済みです。(令和7年7月実施) - 取引態様
- 仲介
その他周辺物件
-
PRICE DOWN新築一戸建て
岡山市北区一宮✽✽✽
岡山市北区一宮✽✽✽
写真充実 建売住宅 築10年以内 駐車場2台可 南面バルコニー 上下水道完備 駐車場1台可更新日:2025.10.07
-
PRICE DOWN新築一戸建て
岡山市北区一宮字緑町2号棟
岡山市北区一宮字緑町2号棟
写真充実 間取り有 建売住宅 築10年以内 駐車場2台可 4LDK以上 上下水道完備 駐車場1台可更新日:2025.10.07
-
PRICE DOWN新築一戸建て
岡山市北区尾上尾上1期(1号棟)
岡山市北区尾上尾上1期(1号棟)
写真充実 間取り有 建売住宅 築10年以内 駐車場2台可 50坪以上 4LDK以上 駐車場1台可更新日:2025.10.06
-
PRICE DOWN新築一戸建て
岡山市北区西辛川
岡山市北区西辛川
写真充実 間取り有 駐車場2台可 接道6m以上 上下水道完備 オール電化 駐車場1台可更新日:2025.10.03
-
PRICE DOWN新築一戸建て
岡山市北区一宮14-8、14-9の一部一宮2期1号棟
岡山市北区一宮14-8、14-9の一部一宮2期...
写真充実 築10年以内 南向き 駐車場2台可 4LDK以上 南面バルコニー 上下水道完備 バリアフリー 駐車場1台可 建売住宅更新日:2025.10.03
同じ価格帯の物件
-
中古一戸建て
岡山市北区惣爪✽✽✽
岡山市北区惣爪✽✽✽
写真充実 間取り有 駐車場2台可 50坪以上 4LDK以上 接道6m以上 駐車場1台可更新日:2025.10.01
-
NEW中古一戸建て
岡山市北区津島東✽✽✽
岡山市北区津島東✽✽✽
写真充実 収益物件更新日:2025.09.30
-
中古一戸建て
岡山市北区辛川市場✽✽✽
岡山市北区辛川市場✽✽✽
写真充実更新日:2025.09.27
-
中古一戸建て
岡山市北区中央町✽✽✽
岡山市北区中央町✽✽✽
写真充実 間取り有 オール電化更新日:2025.09.27
-
中古一戸建て
岡山市北区富原✽✽✽
岡山市北区富原✽✽✽
写真充実 間取り有 駐車場2台可 50坪以上 駐車場1台可更新日:2025.09.26
この物件は118人の
方が興味を持っています